Lakóépület felújítása

Erdőbénye 2025.

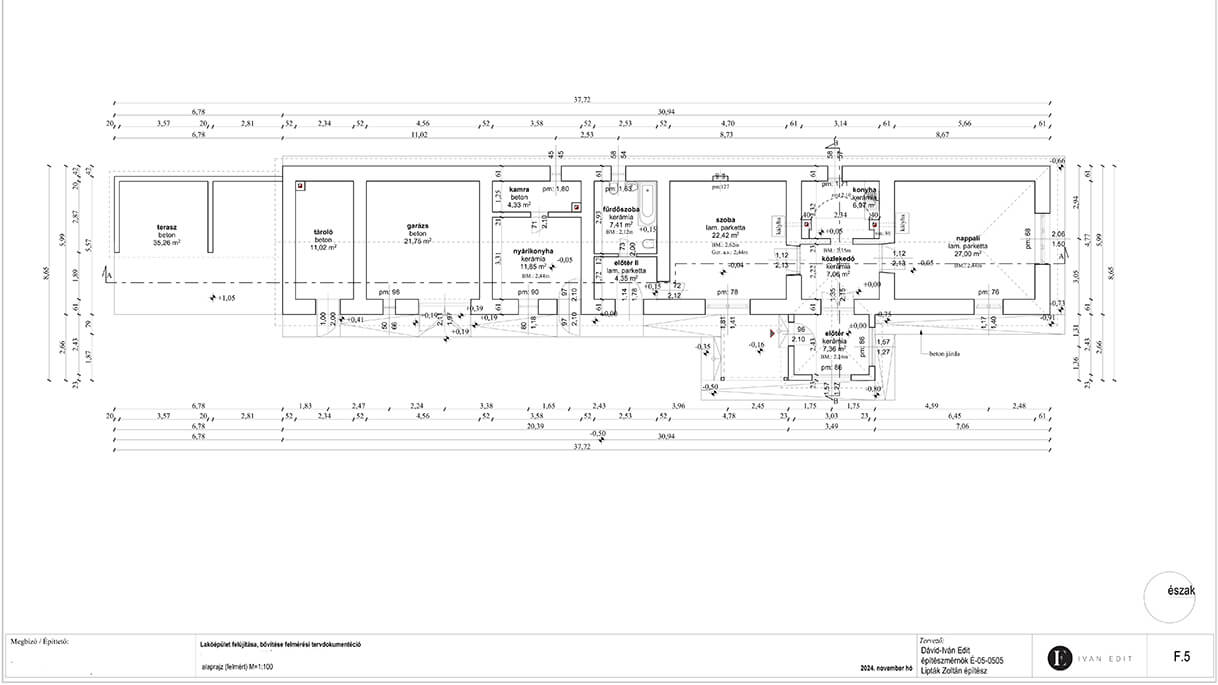
Erdőbénye szívében egy földszintes egytraktusos lakóépületet kellett áttervezni az új tulajdonosok igényére. Az épület cca. 100 éves, fafödémes és kőből épült. A megrendelőkkel közösen cél volt, hogy az épületből amit lehet mentsünk meg és mutassunk meg. A felújítás során a tetőtér beépítésre került és új helységek is megjelentek, mint: szabadidős szoba, egy fedett terasz. Beterveztünk hőszivattyút, napelemet, így az épület részben önfenntartó is lett. Az udvarba pedig egy kültéri medence is került. A végeredmény Tokaj-Hegyalja világörökségi borvidékhez méltó, modern és kényelmes.

iván edit logó
Adatvédelmi áttekintés

Ez a weboldal sütiket használ, hogy a lehető legjobb felhasználói élményt nyújthassuk. A cookie-k információit tárolja a böngészőjében, és olyan funkciókat lát el, mint a felismerés, amikor visszatér a weboldalunkra, és segítjük a csapatunkat abban, hogy megértsék, hogy a weboldal mely részei érdekesek és hasznosak.